
大自然原味寿司|店铺装修项目
公装|餐饮店铺装修
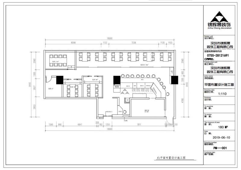
180平方米
现代简约
INITIAL PLAN

PROGRAMME

大自然原味寿司|店铺装修项目

大自然原味寿司|店铺装修项目
ENDERINGS SHOW

大自然原味寿司|店铺装修项目

大自然原味寿司|店铺装修项目

大自然原味寿司|店铺装修项目
THE CONSTRUCTION SITE

EFFECT OF COM PLETION

大自然原味寿司|店铺装修项目

大自然原味寿司|店铺装修项目

好设计
优秀设计,满意为止
好材料
优质主材,厂家直供
好施工
标准工艺,严苛施工
好服务
专业服务,实景体验