
平安银行长沙分行营业厅装修施工
大型公装|银行证券装修施工
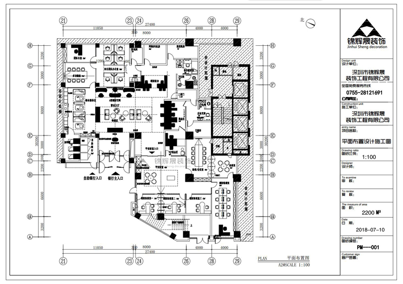
2200平方米
现代简约
INITIAL PLAN
PROGRAMME

平安银行长沙分行营业厅装修施工平面方案
ENDERINGS SHOW

平安银行长沙分行装修效果图
THE CONSTRUCTION SITE

平安银行长沙分行营业厅装修施工进行中

平安银行长沙分行营业厅装修施工进行中

平安银行长沙分行营业厅装修施工进行中

平安银行长沙分行营业厅装修施工进行中

平安银行长沙分行营业厅装修施工进行中
EFFECT OF COM PLETION

平安银行长沙分行营业厅装修竣工

平安银行长沙分行营业厅装修竣工

平安银行长沙分行营业厅装修竣工

平安银行长沙分行营业厅装修竣工
好设计
优秀设计,满意为止
好材料
优质主材,厂家直供
好施工
标准工艺,严苛施工
好服务
专业服务,实景体验